Senast uppdaterad 2 januari 2025
Moderna ettor
Välplanerade lägenheter med mycket platsbyggd förvaring. Varje lägenhet har en egen balkong.
I samarbete med Länsförsäkringar Fastighetsförmedling kan vi erbjuda en VR-visning av en lägenhet. Klicka här för att komma till visningen!
Husen är ritade av arkitekten Andreas Martin-Löf. Se dokumentär
Internet/TV
TV och bredband via Tele2 (gruppabonnemang)
Ventilation
Varje lägenhet är utrustat med ett eget FTX aggregat.
Fönster
Treglas
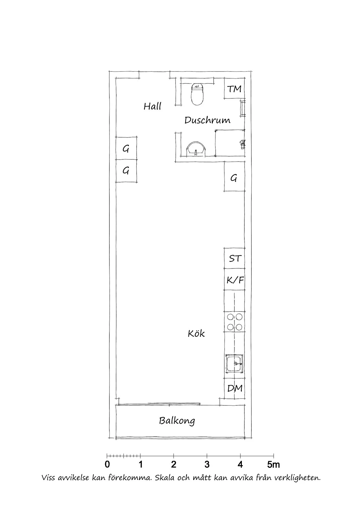
Planritning
Här finns planritning över lägenheten att ladda ner.
Förråd
Till varje lägenhet hör en förrådsbur i ett förrådsutrymme.
Område
Här bor du i centrala Knivsta med gångavstånd till allt.
Många som bor i Knivsta pendlar till Stockholm, Uppsala och Arlanda på daglig basis. I vår föreningen har du nära till tågstationen där både pendeltåg och regionaltåg trafikerar sträckan.
Info
Driftskostnad
ca 6000 kr/år
Byggår
2014
Boarea
32m2
Brf Eda 1 vill rikta ett stort tack till Länsförsäkringar Fastighetsförmedling för att vi får använda deras bilder på vår hemsida!
Observera att bilderna inte får användas i något sammanhang utan tillåtelse från upphovsrättsmannen.
